SIMPLE SOLUTIONS

PROJECTS



FIRE PROTECTION - RISER'S ROOM

FP-01 FIRE PROTECTION SYSTEM

FP-07b-PUMP ROOM

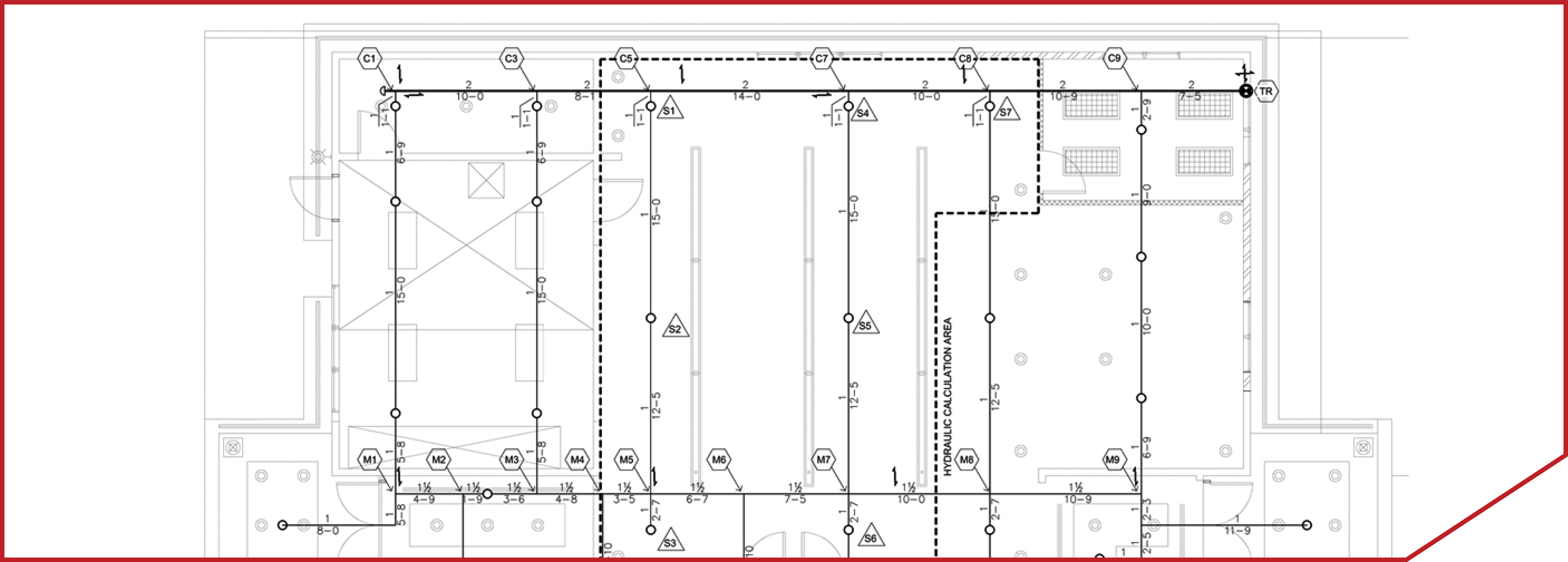
FP-07c-WAREHOUSE SYSTEM

FP-07d-OFFICES

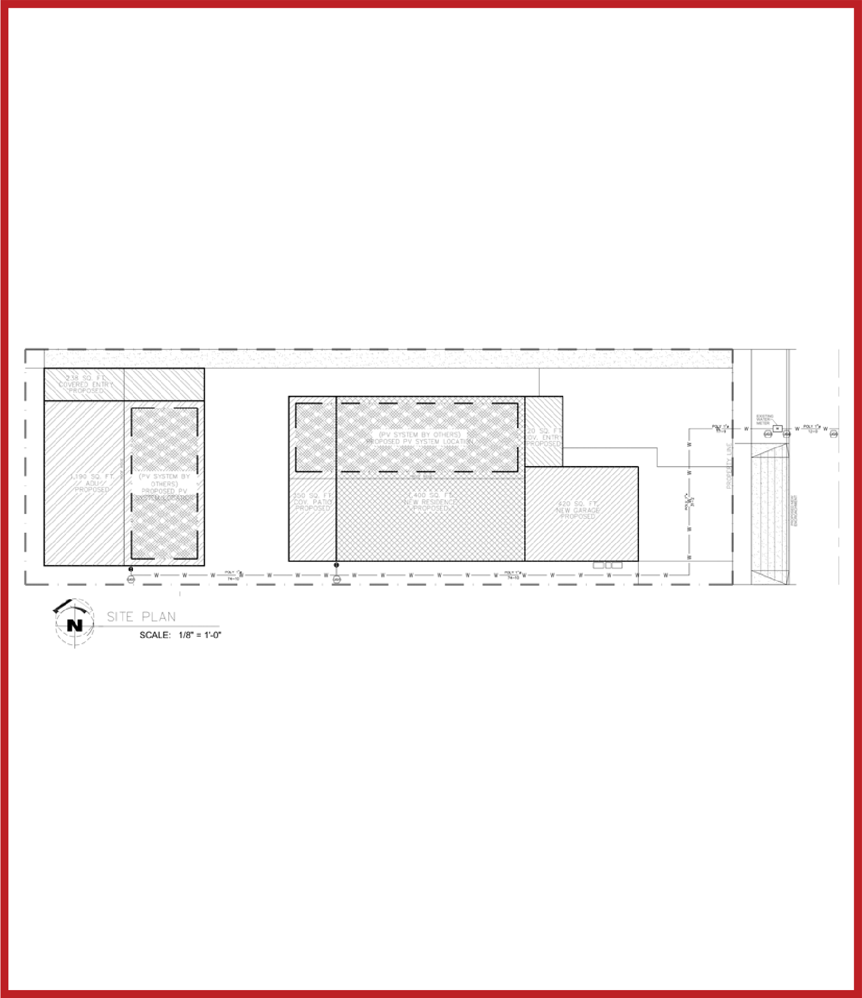
FP-102-UNDERGROUND FIRE SERVICE MAIN

FPS01-HTZL-FIRE SPRINKLER SYSTEMS

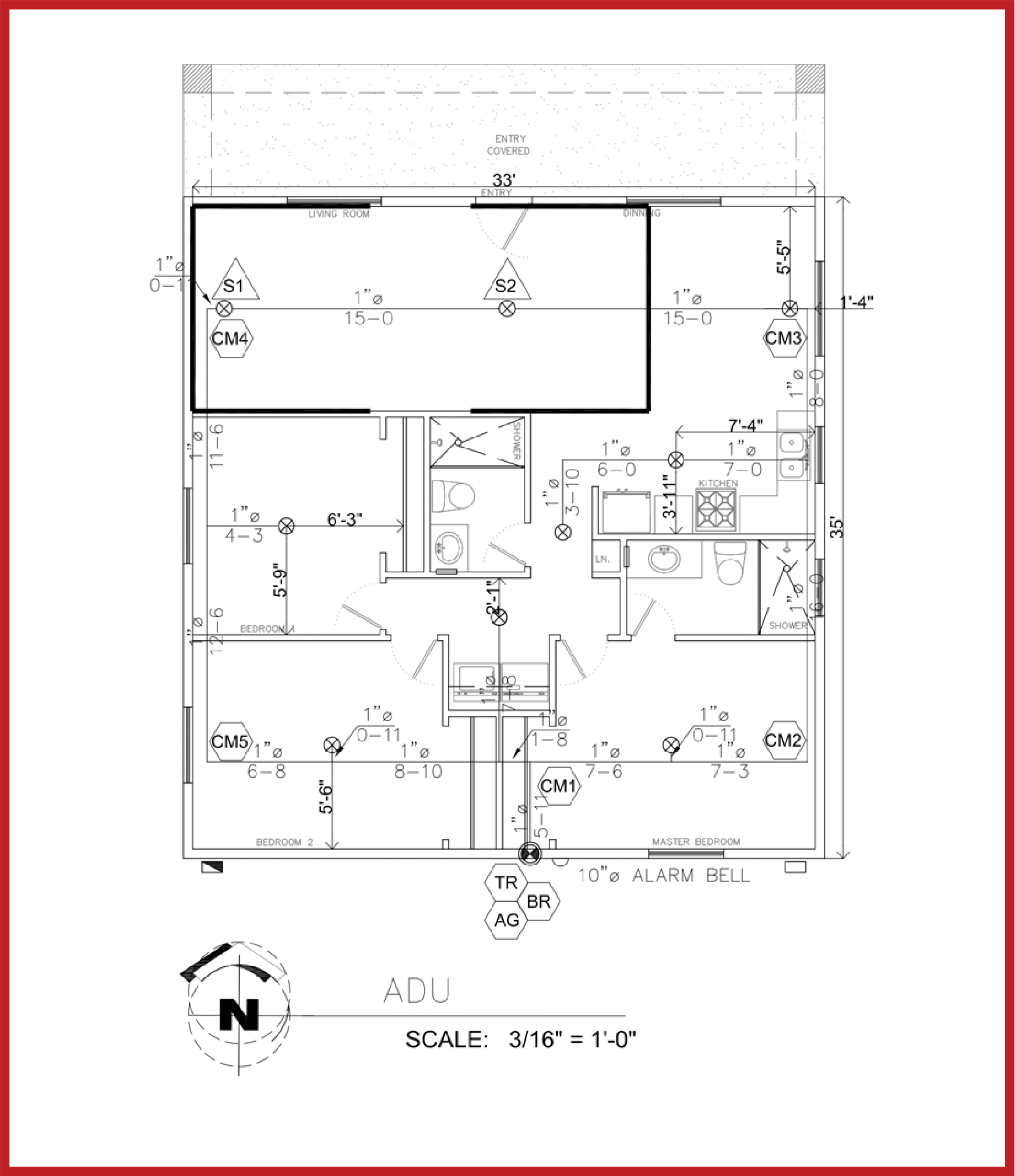
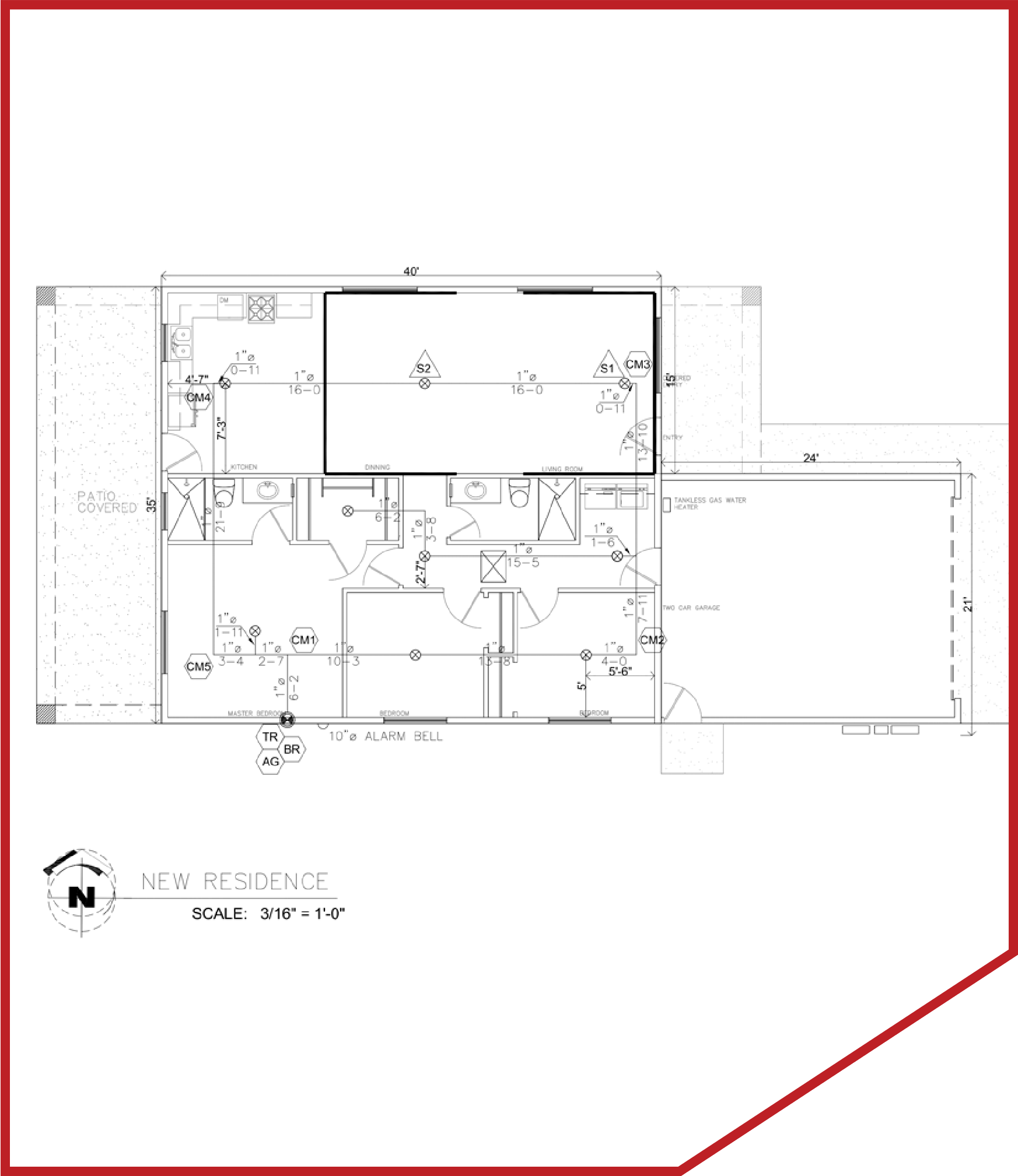
FPS01-RSHCN-SPRINKLERS IN RESIDENCE

FPS-02-FIRE PROTECTION SYSTEM - PUMP ROOM

FPS-04-FIRE PROTECTION SYSTEM - FIRE SPRINKLER SYSTEM#1&5

FPS-FIRE PROTECTION SYSTEM-PUMP ROOM

FPS-FIRE PROTECTION SYSTEM-SYSTEM

FPS-FIRE SPRINKLER SYSTEM FPS-02




CONTACT US

Info@bdefp.com

442 258 9555